ВЫБЕРИТЕ ЖИЛОЙ КОМПЛЕКС
ПОИСК КВАРТИР
Отдел продаж
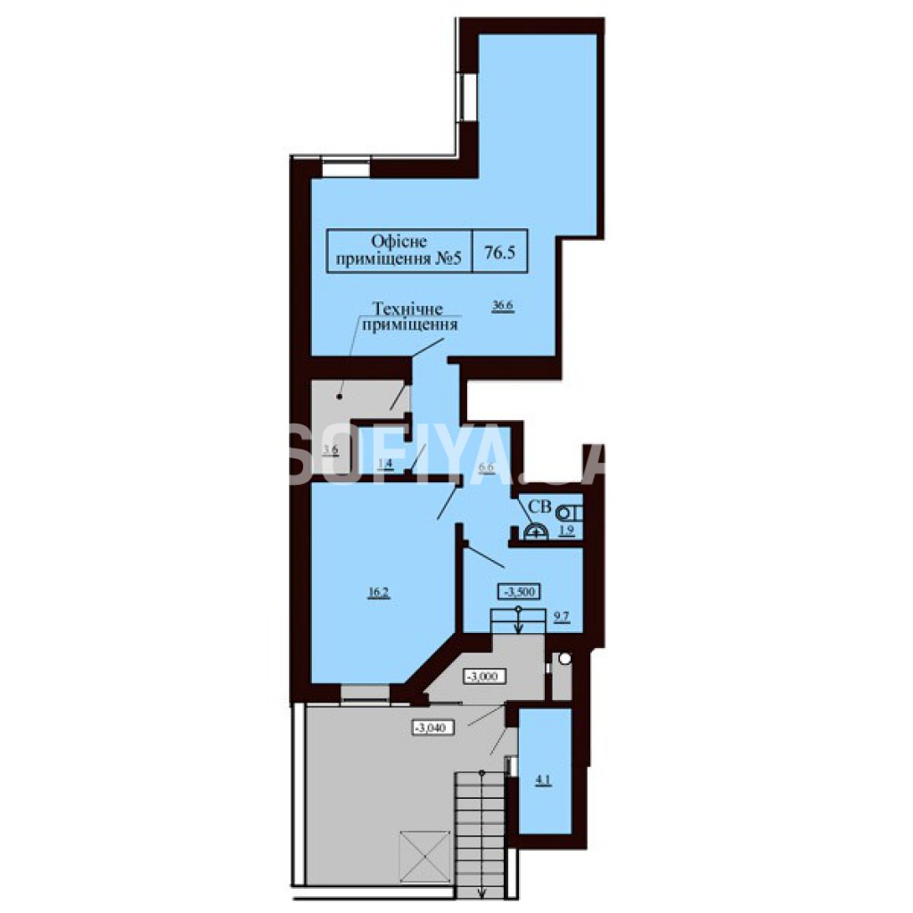
Нежилое помещение 76.5 м/кв
Комнат:
0
S общая:
76.50
S жилая:
0.00
S кухня:
0.00
Санузел
1.90, Смежный
Балкон
Нет
ПОСЛЕДНИЕ НОВОСТИ
Передноворічна новина, на яку чекали: ще один будинок введено в експлуатацію
25.12.2025
ПРОСМОТРОВ: 1356
Отделы продаж:




